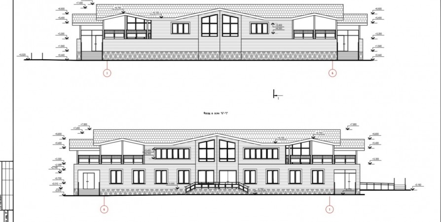
В Апатитах построят двухэтажный модульный дом на лыжном стадионе около спорткомплекса «Атлет». Он будет служить вспомогательным корпусом лыжного стадиона. Об этом сообщили в администрации Апатитов.

- На первом этаже будет находиться вестибюль, раздевалки для спортсменов, помещение для хранения и выдачи лыж и четыре санитарные комнаты. На втором этаже построят помещение для судьи-информатора, две командные раздевалки с душем и туалетными комнатами, конференц-зал и судейскую комнату. По краям здания будут открытые террасы для зрителей, - рассказали в администрации города.

Общая площадь корпуса составит 716,24 «квадратов». Строительство двухэтажного дома обойдется в 71,4 млн рублей.
Ранее Nord-News сообщало, что до 14 октября жители Мурманской области могут поучаствовать в опросе на портале «Наш север» о создании в Оленегорске горнолыжного комплекса «Деревня Морозко».
Фото: Nord-News
Сейчас также читают: В Мурманске после ДТП в легковушке сработали подушки безопасности
Соответствует редакционной политике


